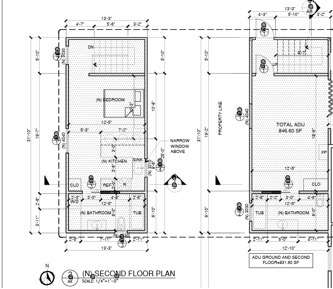
On this project, we built an 830 sq ft 2 story attached ADU. The homeowners wanted a flex space for their hobbies but also a rental unit. Given the limited amount of space we had, the only way to achieve both was to go with a 2 story structure. The lower unit - serving as the flex area for the homeowners - has a dedicated bathroom and plenty of open floor pace. Going up the stairs, the bedroom opens up to a brightly lit space. The second floor is complete with a full kitchen, full bathroom, and laundry.





















Share the details of your project with us so we can provide you with a quote and project timeline.
Call Us Anytime
